
ADDITION FOR FRANK RIVERA
963 LE CONTE AVE.
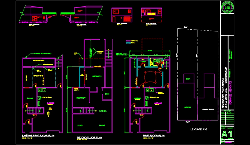
Floor Plan
Engineer: Dominguez Associates
963 LE CONTE AVE.
Elevation
Engineer: Dominguez Associates
Electronic mail address
carlos@sanfranmail.com
Postal mail address and location
40 Humboldt Court
Pacifica, Ca. 94044
This page created by Carlos Dominguez.
Copyright © 1997 [C&C International]. All rights reserved.
Revised: May 1, 2003